Learn how solar energy can help businesses save costs:
Battery energy storage systems help flatten the expense curve by discharging during the times of day when they are needed most.
CONTINUOUS POWER SUPPLY FOR YOUR BUSINESS
We select the right solution based on each partner’s needs, combining advanced storage technologies with technical expertise, market knowledge and high-voltage implementation experience. Learn how our solutions can help you build commercial energy storage systems.
Quality
Assurance
Cycle
Life
Type
ON/OFF-Grid
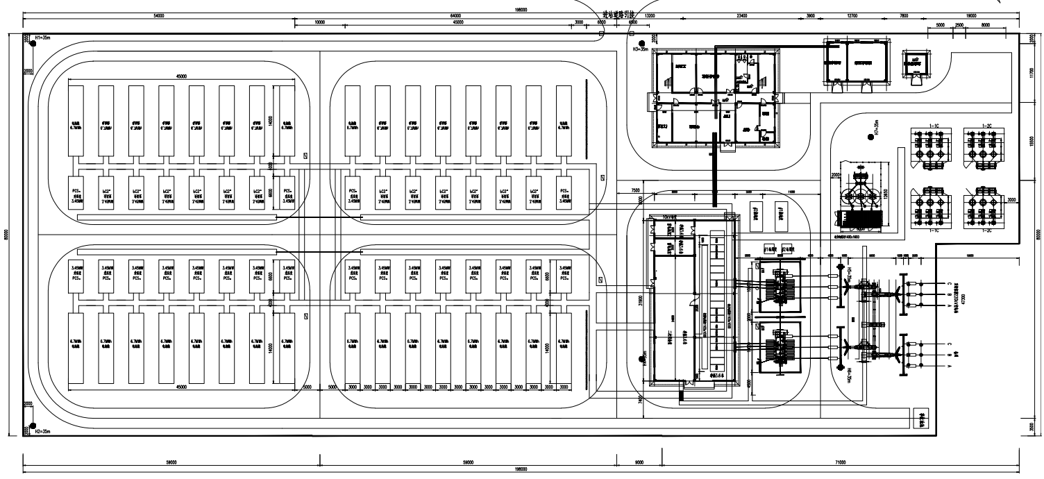
Commercial Energy Storage Case
4MWh Large Energy Storage Station
This project constitutes a grid-connected large-scale energy storage system, furnished with a 4000 kWh LiFePO4 battery coupled with a 2000 kVA PCS. It serves as an on-site independent backup power source for critical equipment and helps shield operational expenses from the impact of utility rate hikes and power supply fluctuations.
1MWh Container Power Storage Station
This system integrates photovoltaic solar panels with the grid for a commercial energy storage solution. It includes a 1MW LiFePO4 battery compartment, capable of supplying power for up to 8 hours. This setup reduces operational costs for businesses and enhances power supply reliability.
WHY PKNERGY
Responsible
We adhere to the business principles of honesty, transparency and fairness, build a foundation of trust and cooperation, and strive to make a positive contribution to clean energy
Sincere
We value the trust of our partners, develop together with a sincere attitude, share success and provide customers with the most sincere and thoughtful services. Guaranteed your needs are met.
Professional
Switching to renewable energy for your business requires careful planning. It helps to have a sustainability expert on your side. As a leading global provider of sustainable solutions, Pknergy knows exactly what you need to overcome your toughest challenges and achieve your energy goals.
LET’S WORK TOGETHER
PKNERGY is committed to the future of your business. Let’s partner together to achieve your decarbonization goals.















